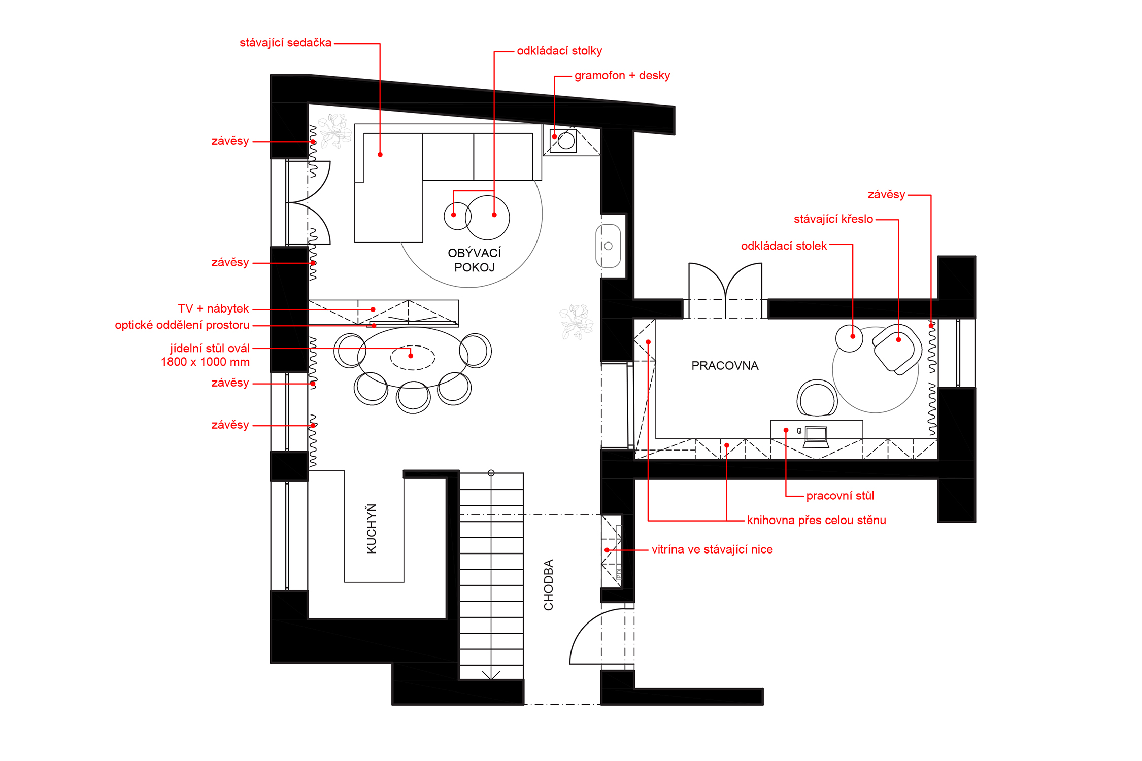
INTERIÉR OBÝVACÍHO POKOJE A KNIHOVNY

návrh: březen 2026

Místo: KROMĚŘÍŽ