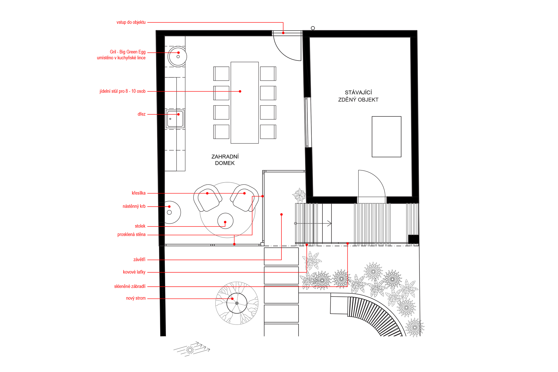
ZAHRADNÍ DOMEK A ÚPRAVA ZAHRADY

návrh: březen 2026

Místo: KROMĚŘÍŽ - Vážany